技術成熟:多年行業經驗沉淀,鑄就了成熟的技術、優良的信譽與口碑
匠心制造: 精細的工藝技術,流暢的生產加工配置,日久見品質。
制定專屬設計方案
一對一售后服務
就近考察生產現場
60秒人工響應
30分鐘給予技術答復
24小時免費定制方案
籠體框架采用275克首鋼鍍鋅板制作,網片采用Q235材質黑絲焊接后整體熱鍍鋅,使用全自動電焊機,焊接點特別牢固。設備采用鍍鋅鐵絲制作,鍍鋅細膩,經久耐用,且具有極強的扛腐蝕功能。組裝方便,可根據場地做調整,可加裝自動飲水,自動填料,自動清糞,實現養殖自動化。特殊規格,可來樣定做,也可按要求定做。底網7-8°,安裝在張緊鋼絲上彈性大,包護雞蛋下落及滾動。隔網和底網加密,能有效防止啄羽啄肛和產蛋雞疲勞綜合癥。獨特大門加固設計,龍門空間增大,方便對雞的各種操作。

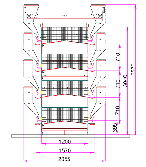
| 雞籠層數 | 層高(mm) | 籠高(mm) | 至行車頂高(mm) | 立柱間距(mm) | 料槽間距(mm) | 行車間距(mm) |
| 3 | 710 | 2330 | 2860 | 1200 | 1570 | 2055 |
| 4 | 3040 | 3570 | ||||
| 5 | 3750 | 4280 | ||||
| 33 | 5170 | 5700 | ||||
| 44 | 6580 | 7110 |